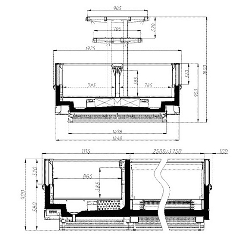
Морозильная бонета Антей ВН 27 представляет собой двухобъемную цельнозаливную ванну и предназначена для работы на выносных агрегатах и станциях центрального хладообеспечения. Бонета состоит из односторонних модулей, соединенных в «острова» посредством торцевых и фронтальных элементов корпуса. Дополнительно бонету можно доукомплектовать неохлаждаемой надстройкой (суперструктурой). Оборудование серии Антей используется для демонстрации и продажи замороженных продуктов в магазинах самообслуживания.


















